A unique and intimate collection of conventional and rear lane towns. Intricately linked to every element of family and community life to optimize the happiness and wellbeing of its residents. Perfectly situated east of Lake Simcoe, backing onto the Scugog River and surrounded by numerous lakes, parks and rivers. Lindsay is one of Southern Ontario’s best kept secrets. Here, in the heart of the Kawartha Lakes, Fernbrook Homes is pleased to announce a new enclave of contemporary townhomes. Welcome to Hygge. Welcome Home.
Assignment Fee Free
No
Cc Or Maint Fee Included
No
Ceiling Heights
8'0'' - 9'0''
City Or District
Kawartha Lakes
Construction Status
Construction
Contact For Pricing
No
Country
Canada
Development Levies Included
No
Estimated Completion Date
June 2025
Source : Walk Score
Find out information For Hygge Towns, 233 Lindsay Street North, Kawartha Lakes, Canada
Discover the units and floor plans available as part of this precon project.
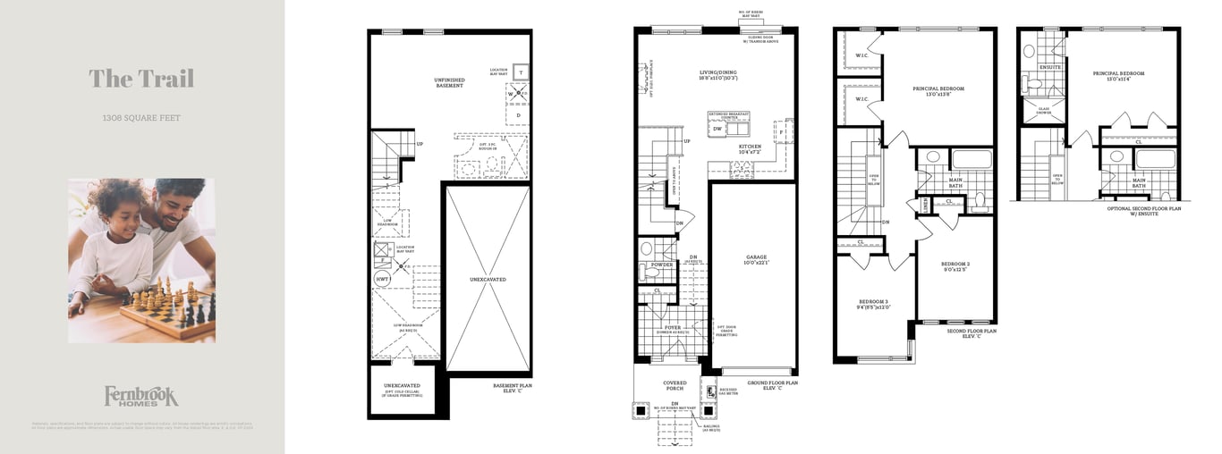
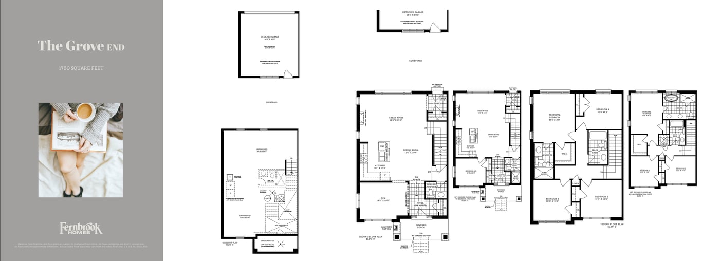
Floor Plan
Floor Plan
Floor Plan
Floor Plan
Floor Plan
Find out information about nearby public amenities for Hygge Towns, 233 Lindsay Street North, Kawartha Lakes, Canada
Find out information about nearby points of interest for Hygge Towns, 233 Lindsay Street North, Kawartha Lakes, Canada
2220 Highway 7, 5, Vaughan, Ontario, L4K 1W7, Canada
At Fernbrook Homes we believe that taking care of our customers is our first and most important priority. From the moment you walk into one of our sales centres, to long after you've moved into your new home, we take care of you. We take care to ensure our home designs are as cutting edge as possible, customizing plans when necessary to better suit a family's individual needs and desires. We take care to ensure we build your home with the highest quality materials and workmanship techniques to last a lifetime. And most importantly, we take care to ensure you're completely satisfied with your new home purchase. Over the last three decades, we've taken good care of thousands of homeowners in dozens of our signature communities. Come visit one of our fine communities today and see how we can take care of you.
2220 Highway 7, 5, Vaughan, Ontario, L4K 1W7, Canada